в месяц
СДАЁТСЯ В АРЕНДУ ПОМЕЩЕНИЕ В ЦЕНТРЕ ТВЕРИ ПОД РЕСТОРАННЫЙ ИЛИ ГОСТИНИЧНЫЙ КОМПЛЕКС.
Участок во дворе под летнюю террасу - в ПОДАРОК!
Здание расположено на главной пешеходной артерии города бульваре Радищева. Каждый вечер здесь царит оживление, особенно в выходные. Это место привлекает как местных жителей, так и туристов, которые находят здесь возможность отдохнуть и насладиться развлечениями.
На бульваре расположено множество бутиков, салонов красоты, баров и ресторанов на любой вкус: кофейни, рестораны быстрого питания и заведения с вечерней программой. Кроме того, в шаговой доступности находятся банки, офисные и административные центры.
Подробные технические характеристики мы готовы отправить Вам в ПРЕЗЕНТАЦИЮ по Вашему запросу. Напишите или позвоните по указанному номеру телефона!
Кратко о нашем предложении:
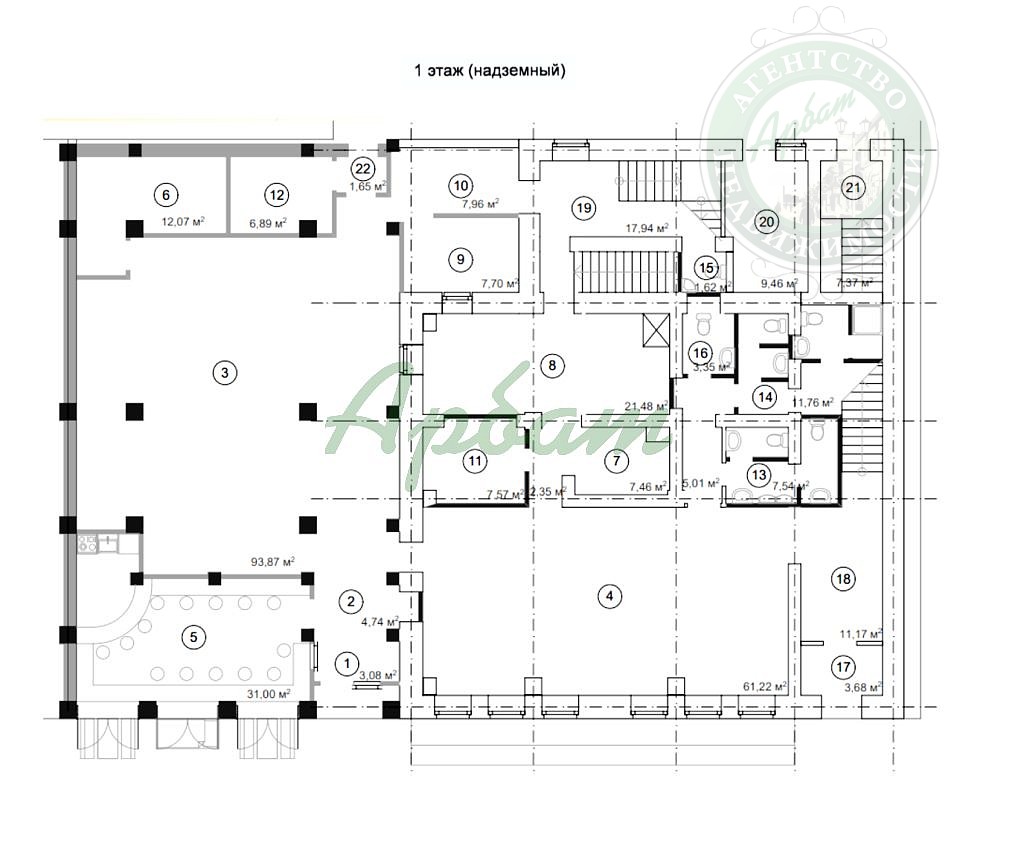
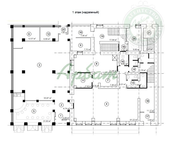
ТЕХНИЧЕСКИЕ ХАРАКТЕРИСТИКИ ЗДАНИЯ
Общая площадь здания 782 м.
Все коммуникации центральные.
Мощность эл/эн - 75 кВт.
На ПЕРВОМ ЭТАЖЕ расположены два просторных зала: 94 м и 62 м, санузлы, два отдельных входа со стороны бульвара. Один из залов освещён через кровлю.
На ВТОРОМ ЭТАЖЕ находится просторный зал площадью 75 м, зона санузлов, подсобные помещения и уютный балкон.
На МАНСАРДЕ расположен великолепный зал с панорамным остеклением. Его общая площадь составляет 61 м. Здесь можно организовать пространство по своему вкусу. Кроме того, есть выход на крышу с летней террасой.
ПОДВАЛ оборудован под кухонный цех с системой вентиляции. Установлен кухонный лифт, который работает до второго этажа
ЛЕТНЯЯ ТЕРРАСА - во внутреннем дворе здания есть участок площадью 2 сотки земли, на котором можно разместить летнюю зону ресторана.
УСЛОВИЯ АРЕНДЫ
Арендный платёж: 950 руб. за 1 м в месяц.
За всё здание - 742 900 руб.
Эксплуатационные расходы оплачиваются отдельно.
Возможны каникулы на отделочные работы.
Преимущественная аренда всего здания.
Оплата комиссионных агента не требуется.
Всю дополнительную информацию Вы можете запросить удобным для Вас способом, позвонив или написав сообщение.
Звоните и записывайтесь на просмотр, чтобы лично оценить все преимущества этого предложения. Мы будем рады ответить на все ваши вопросы и помочь с выбором!
БОНУСЫ от компании
Мы предлагаем ряд дополнительных преимуществ, которые сделают Вашу жизнь комфортнее:
Помощь в оформлении ипотеки и страхования.
Организация безопасных расчётов.
Подбор новостройки по Вашим параметрам.
Продажа или выкуп Вашей недвижимости.
Организация переезда, клининга и меблировки.
Сертификаты на скидки от партнёров компании.
Снижение ипотечной ставки на 5-7 пунктов.
Участок во дворе под летнюю террасу - в ПОДАРОК!
Здание расположено на главной пешеходной артерии города бульваре Радищева. Каждый вечер здесь царит оживление, особенно в выходные. Это место привлекает как местных жителей, так и туристов, которые находят здесь возможность отдохнуть и насладиться развлечениями.
На бульваре расположено множество бутиков, салонов красоты, баров и ресторанов на любой вкус: кофейни, рестораны быстрого питания и заведения с вечерней программой. Кроме того, в шаговой доступности находятся банки, офисные и административные центры.
Подробные технические характеристики мы готовы отправить Вам в ПРЕЗЕНТАЦИЮ по Вашему запросу. Напишите или позвоните по указанному номеру телефона!
Кратко о нашем предложении:
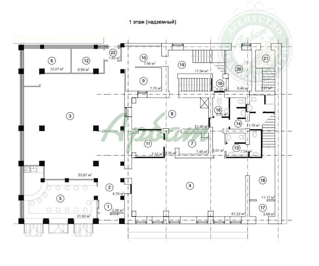
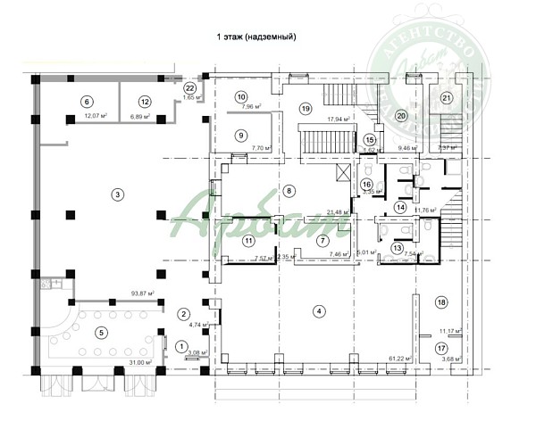
ТЕХНИЧЕСКИЕ ХАРАКТЕРИСТИКИ ЗДАНИЯ
Общая площадь здания 782 м.
Все коммуникации центральные.
Мощность эл/эн - 75 кВт.
На ПЕРВОМ ЭТАЖЕ расположены два просторных зала: 94 м и 62 м, санузлы, два отдельных входа со стороны бульвара. Один из залов освещён через кровлю.
На ВТОРОМ ЭТАЖЕ находится просторный зал площадью 75 м, зона санузлов, подсобные помещения и уютный балкон.
На МАНСАРДЕ расположен великолепный зал с панорамным остеклением. Его общая площадь составляет 61 м. Здесь можно организовать пространство по своему вкусу. Кроме того, есть выход на крышу с летней террасой.
ПОДВАЛ оборудован под кухонный цех с системой вентиляции. Установлен кухонный лифт, который работает до второго этажа
ЛЕТНЯЯ ТЕРРАСА - во внутреннем дворе здания есть участок площадью 2 сотки земли, на котором можно разместить летнюю зону ресторана.
УСЛОВИЯ АРЕНДЫ
Арендный платёж: 950 руб. за 1 м в месяц.
За всё здание - 742 900 руб.
Эксплуатационные расходы оплачиваются отдельно.
Возможны каникулы на отделочные работы.
Преимущественная аренда всего здания.
Оплата комиссионных агента не требуется.
Всю дополнительную информацию Вы можете запросить удобным для Вас способом, позвонив или написав сообщение.
Звоните и записывайтесь на просмотр, чтобы лично оценить все преимущества этого предложения. Мы будем рады ответить на все ваши вопросы и помочь с выбором!
БОНУСЫ от компании
Мы предлагаем ряд дополнительных преимуществ, которые сделают Вашу жизнь комфортнее:
Помощь в оформлении ипотеки и страхования.
Организация безопасных расчётов.
Подбор новостройки по Вашим параметрам.
Продажа или выкуп Вашей недвижимости.
Организация переезда, клининга и меблировки.
Сертификаты на скидки от партнёров компании.
Снижение ипотечной ставки на 5-7 пунктов.