Ваш собственный дом из газосиликата с тёплым контуром, где каждая деталь продумана для комфортной жизни. Участок, который мы предлагаем, это не просто земля, а стартовая площадка для воплощения вашей мечты о загородном жилище.
Дом, который вас ждёт (в рамках предлагаемого проекта):
Построен из высококачественного газосиликата материала, сочетающего в себе:
отличную теплоизоляцию (в доме будет уютно зимой и прохладно летом);
превосходную звукоизоляцию;
долговечность и устойчивость к внешним воздействиям;
быструю скорость строительства.
Тёплый контур дома обеспечит:
дополнительную защиту от холода;
снижение расходов на отопление;
комфортный микроклимат в любое время года.
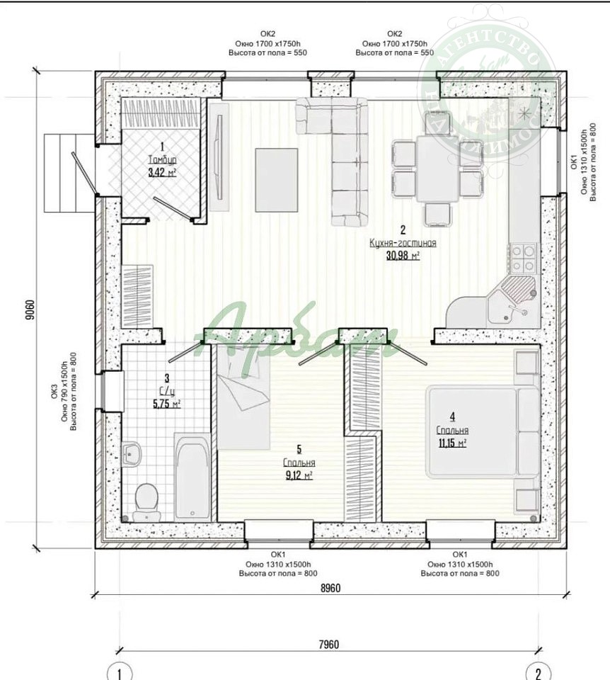
Планировка дома продуманная до мелочей:
Тамбур (3,42 м) в входной зоне практичное решение для защиты дома от холода и пыли. Здесь можно разместить систему хранения для обуви и верхней одежды, создав порядок с первых шагов в доме.
Просторная кухня-гостиная (30,98 м) сердце дома. Пространство зонировано: Кухонная зона с удобным расположением техники и рабочих поверхностей здесь будет приятно готовить.
Гостиная зона с местом для большого семейного стола и мягкой мебели идеально для общения и отдыха.
Две уютные спальни (9,12 м и 11,15 м) личные пространства для отдыха: В первой спальне (9,12 м) можно разместить двуспальную кровать, прикроватные тумбочки и небольшой шкаф всё для комфортного сна.
Вторая спальня (11,15 м) чуть больше здесь найдётся место не только для кровати, но и для рабочего стола или детской зоны.
Функциональные коридоры и проходы обеспечивают удобный доступ ко всем комнатам, не загромождая пространство.
Практичные ниши и места для хранения в проекте предусмотрены встроенные шкафы и полки, которые помогут поддерживать порядок в доме.
Почему этот участок идеально подходит для строительства?
Ровный рельеф и высокое расположение никаких подтоплений, идеальная площадка для фундамента.
Развитый район участок граничит с уже освоенными территориями, рядом дружелюбные соседи.
Коммуникации подведены к границе участка экономия времени и средств на подключении.
Юридическая чистота участок в собственности с 2018 года, один взрослый собственник, быстрая и прозрачная сделка.
Доступ к современному телевидению и высокоскоростному интернету комфорт проживания обеспечен.
Полная готовность к сделке все документы проверены и готовы к передаче.
Не откладывайте мечту о собственном доме! Этот участок ждёт именно вас здесь вы сможете построить жильё, которое будет отвечать всем вашим пожеланиям.
Звоните прямо сейчас, чтобы узнать больше и начать путь к вашему идеальному дому!
Обратите внимание: представленный проект это лишь основа для вашего будущего дома. Вы можете адаптировать планировку и отделку под свои потребности: изменить размеры комнат, добавить дополнительные помещения (например, гардеробную или кабинет), скорректировать расположение окон и дверей. Такие изменения могут повлиять на итоговую стоимость строительства финальная цена будет зависеть от выбранных материалов, сложности работ и дополнительных опций.
Визуализация проекта
Изображения дома, представленные в объявлении, созданы с помощью искусственного интеллекта. Они дают общее представление о том, как может выглядеть ваш будущий дом, и помогают представить атмосферу и стиль пространства. Реальный результат может отличаться с учётом внесённых вами корректировок и особенностей реализации проекта.
Дом, который вас ждёт (в рамках предлагаемого проекта):
Построен из высококачественного газосиликата материала, сочетающего в себе:
отличную теплоизоляцию (в доме будет уютно зимой и прохладно летом);
превосходную звукоизоляцию;
долговечность и устойчивость к внешним воздействиям;
быструю скорость строительства.
Тёплый контур дома обеспечит:
дополнительную защиту от холода;
снижение расходов на отопление;
комфортный микроклимат в любое время года.
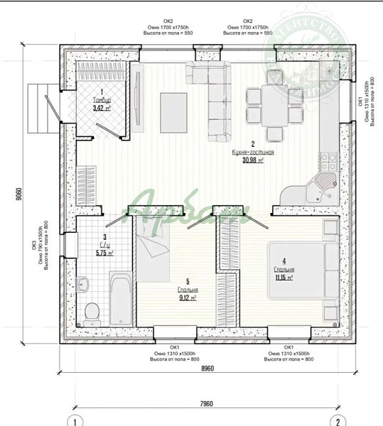
Планировка дома продуманная до мелочей:
Тамбур (3,42 м) в входной зоне практичное решение для защиты дома от холода и пыли. Здесь можно разместить систему хранения для обуви и верхней одежды, создав порядок с первых шагов в доме.
Просторная кухня-гостиная (30,98 м) сердце дома. Пространство зонировано: Кухонная зона с удобным расположением техники и рабочих поверхностей здесь будет приятно готовить.
Гостиная зона с местом для большого семейного стола и мягкой мебели идеально для общения и отдыха.
Две уютные спальни (9,12 м и 11,15 м) личные пространства для отдыха: В первой спальне (9,12 м) можно разместить двуспальную кровать, прикроватные тумбочки и небольшой шкаф всё для комфортного сна.
Вторая спальня (11,15 м) чуть больше здесь найдётся место не только для кровати, но и для рабочего стола или детской зоны.
Функциональные коридоры и проходы обеспечивают удобный доступ ко всем комнатам, не загромождая пространство.
Практичные ниши и места для хранения в проекте предусмотрены встроенные шкафы и полки, которые помогут поддерживать порядок в доме.
Почему этот участок идеально подходит для строительства?
Ровный рельеф и высокое расположение никаких подтоплений, идеальная площадка для фундамента.
Развитый район участок граничит с уже освоенными территориями, рядом дружелюбные соседи.
Коммуникации подведены к границе участка экономия времени и средств на подключении.
Юридическая чистота участок в собственности с 2018 года, один взрослый собственник, быстрая и прозрачная сделка.
Доступ к современному телевидению и высокоскоростному интернету комфорт проживания обеспечен.
Полная готовность к сделке все документы проверены и готовы к передаче.
Не откладывайте мечту о собственном доме! Этот участок ждёт именно вас здесь вы сможете построить жильё, которое будет отвечать всем вашим пожеланиям.
Звоните прямо сейчас, чтобы узнать больше и начать путь к вашему идеальному дому!
Обратите внимание: представленный проект это лишь основа для вашего будущего дома. Вы можете адаптировать планировку и отделку под свои потребности: изменить размеры комнат, добавить дополнительные помещения (например, гардеробную или кабинет), скорректировать расположение окон и дверей. Такие изменения могут повлиять на итоговую стоимость строительства финальная цена будет зависеть от выбранных материалов, сложности работ и дополнительных опций.
Визуализация проекта
Изображения дома, представленные в объявлении, созданы с помощью искусственного интеллекта. Они дают общее представление о том, как может выглядеть ваш будущий дом, и помогают представить атмосферу и стиль пространства. Реальный результат может отличаться с учётом внесённых вами корректировок и особенностей реализации проекта.